← Volver al Inicio
Español Português Italiano English

Caso Criminal — Defensa Contra la Persecución Estatal

Documentación Completa — Evidencia de Inocencia

Resumen de Evidencia Crítica

Violaciones de Leyes Físicas
750%
Violación de la Ley de Snell: ángulo de rebote imposible de 15° desde impacto de 2°
Déficit de Energía
300,000×
Energía insuficiente para el daño alegado después del rebote
Falta de Orificio de Salida en Pantalones
Entrada Dudosa
Orificio de 7mm vs bala de 10.6mm, y herida rectangular de 20mm x 10mm detrás
La bala no atravesó el muslo; ¿qué causó la herida?
Solo la Herida de Entrada Tratada y Vendada
SOLO la herida de entrada de Ahumada tratada en la escena y luego vendada; SOLO sangre en la herida de entrada
Imposibilidad Química
Munición Sin Plomo
Munición Cor-Bon certificada libre de plomo, pero se encontraron trazas de plomo
Legítima Defensa
Evidencia en Video
Turba gritando "mátenlo, hijo de puta" antes de los disparos

Personal Judicial Involucrado en el Caso

Fiscal Adjunta Inepta, Arrogante y Posiblemente Corrupta en Viña del Mar Involucrada en Caso John Cobin - Octubre 2020

Paola Rojas Caro

Fiscal Adjunta Inepta, Arrogante y Posiblemente Corrupta en Viña del Mar Involucrada en Caso John Cobin - Octubre 2020

Fiscal Adjunta Inepta, Arrogante y Posiblemente Corrupta en Viña del Mar Involucrada en Caso John Cobin - Octubre 2020

Paola Rojas Caro

Fiscal Adjunta Inepta, Arrogante y Posiblemente Corrupta en Viña del Mar Involucrada en Caso John Cobin - Octubre 2020

Fiscal Jefe Viña del Mar - Maneja Casos Mayores - Octubre 2020

Vivian Quiñones

Fiscal Jefe Viña del Mar - Maneja Casos Mayores - Octubre 2020

Fiscal Jefe Viña del Mar - Maneja Casos Mayores - Octubre 2020

Vivian Quiñones

Fiscal Jefe Viña del Mar - Maneja Casos Mayores - Octubre 2020

✝️
Pasen ellos como el caracol que se deslíe Salmo 58:8a
Destruirás a los que hablan mentira; al hombre sanguinario y engañador abominará Jehová. Salmo 5:6
Abogada de Ahumada y agente comunista del INDH que persiguió a Pinochet en Londres y quería sacar de las calles a un hombre malo como Cobin

Rita Díaz Torres

Abogada de Ahumada y agente comunista del INDH que persiguió a Pinochet en Londres y quería sacar de las calles a un hombre malo como Cobin

Abogada de Ahumada y agente comunista del INDH que persiguió a Pinochet en Londres y quería sacar de las calles a un hombre malo como Cobin

Rita Díaz Torres

Abogada de Ahumada y agente comunista del INDH que persiguió a Pinochet en Londres y quería sacar de las calles a un hombre malo como Cobin

Abogado para Ahumada y más rojo que cualquier comunista relacionado con INDH que quería que John sufriera más y pidió al tribunal mover a John Cobin a un bloque celular diferente al 118 de Valparaíso. Afirmó en procedimientos judiciales anteriores que nadie era más peligroso para la sociedad que un Libertario - Especialista en Defensas Penales Querellante - Octubre 2020

Carlos Oliva Ballón

Abogado para Ahumada y más rojo que cualquier comunista relacionado con INDH que quería que John sufriera más y pidió al tribunal mover a John Cobin a un bloque celular diferente al 118 de Valparaíso. Afirmó en procedimientos judiciales anteriores que nadie era más peligroso para la sociedad que un Libertario - Especialista en Defensas Penales Querellante - Octubre 2020

Abogado Querellante en Caso Cobin - Vistas Marxistas sobre Defensa como Acto Político - Octubre 2020

Gustavo Burgos

Abogado Querellante en Caso Cobin - Vistas Marxistas sobre Defensa como Acto Político - Octubre 2020

Abogado representando al gobernador regional Jorge Martínez y (indirectamente) al Presidente Sebastián Piñera, que buscó dañar severamente a John Cobin, afirmando falsamente que causó los disturbios y destrucción en Reñaca - Octubre 2020

Andrés Lagos Lavancini

Abogado representando al gobernador regional Jorge Martínez y (indirectamente) al Presidente Sebastián Piñera, que buscó dañar severamente a John Cobin, afirmando falsamente que causó los disturbios y destrucción en Reñaca - Octubre 2020

Defensor Público Quijotesco y Fallido para Cobin - Octubre 2020

Guillermo Améstica

Defensor Público Quijotesco y Fallido para Cobin - Octubre 2020

H3ctor - Comunista/Izquierdista Ignorante y Malicioso que Odia a John Cobin Ver PDF

Recepción de reclamo contra fiscal

H3ctor

H3ctor - Comunista/Izquierdista Ignorante y Malicioso que Odia a John Cobin

🎬 Ver: El Prisionero que Luchó 🇺🇸 Solo en Inglés

📺 Enlace alternativo (InVideo)

Permisos de armas de fuego de John Cobin
Permiso de Armas Ocultas Carolina del Sur 2017 (Frente)

Permiso de Armas Ocultas Carolina del Sur 2017 (Frente)

Permiso de Armas Ocultas Carolina del Sur 2017 (Atrás)

Permiso de Armas Ocultas Carolina del Sur 2017 (Atrás)

Permiso de Armas Ocultas Florida 2007 (Frente)

Permiso de Armas Ocultas Florida 2007 (Frente)

Permiso de Armas Ocultas Florida 2007 (Atrás)

Permiso de Armas Ocultas Florida 2007 (Atrás)

Permiso de Armas Ocultas Carolina del Sur 2010 (Frente)

Permiso de Armas Ocultas Carolina del Sur 2010 (Frente)

Permiso de Armas Ocultas Carolina del Sur 2010 (Atrás)

Permiso de Armas Ocultas Carolina del Sur 2010 (Atrás)

Permiso de Armas Ocultas New Hampshire 2010 (Frente)

Permiso de Armas Ocultas New Hampshire 2010 (Frente)

Permiso de Armas Ocultas New Hampshire 2010 (Atrás)

Permiso de Armas Ocultas New Hampshire 2010 (Atrás)

Inscripciones de Armas y Licencia de Transporte de John Cobin (Vigente en 2019)

Ver PDF

Reporte de Armas John Cobin

Ver PDF

Autorización Transporte Armas de Fuego John Cobin

Ver PDF

Decisiones de Corte de Apelaciones y Corte Suprema – Denegación de Libertad Condicional y Rechazo de Indulto Presidencial

Corte Suprema Chilena Acoge Nulidad — Marzo 2021

Corte Suprema acoge petición de nulidad, reconociendo errores procesales

Ver PDF

Sentencia de Reemplazo Corte Suprema — Reduce de 11 a 6.1 Años

Marzo 2021 - Sentencia de reemplazo de la Corte Suprema Chilena reduciendo el término

Ver PDF

John Negado Libertad Condicional por Cortes de Apelaciones y Suprema Debido a Sus Creencias, Valores y Actitudes Adquiridas en EE.UU. Más Su Elocuencia el 24 de abril de 2023

Ver PDF

Indulto Presidencial Negado a John Debido a Sus Creencias y Valores el 19 de junio de 2023 por el Ministro de Justicia Luis Cordero

Ver PDF
Luis Cordero Vega, Ministro de Justicia que Denegó Indulto en 2023 de John Cobin Debido a sus Malas Creencias y Valores de los EEUU

Luis Cordero Vega, Ministro de Justicia que Denegó Indulto en 2023 de John Cobin Debido a sus Malas Creencias y Valores de los EEUU

Acto Otorgando Condena Cumplida John Cobin - 27 de Agosto de 2025

Ver PDF

Certificado de cumplimiento de condena (11 sept 2025)

Certificado de Cumplimiento de Condena - 11 de septiembre de 2025

Certificado de Cumplimiento de Condena - 11 de septiembre de 2025

Informes del Médico Tratante y Análisis del Experto en Balística

No se Menciona Herida de Salida, Fragmento Metálico en Interior

Admisión hospitalaria y reporte médico (Ahumada)

Ver PDF

Experto Duda del Análisis del Joven Doctor Forense Tepper

Ver PDF

Solicitud de Peritaje PDI Pantalones de Ahumada

Ver PDF

Informe de Experto Balístico sobre Pantalones: Sin Orificio de Salida

Ver PDF

Ambas Heridas de Entrada y Salida Aparecen 87 Días Después

Dr. Tepper del SML

Ver PDF

Síntesis Policial del Agujero en Pantalón y Mancha de Sangre Antigua

Comentarios Breves de PDI

Ver PDF

Estudios Forenses Balísticos Integrales

Análisis Integral de Balística

Análisis integral de balística revisado por experto certificado

Ver PDF

Análisis Integral de Discrepancias Técnicas

Análisis completo de discrepancias técnicas y evidencia del caso Cobin

Ver PDF

Balas Destruidas Después de Impactar el Suelo con Ángulos de Incidencia de Disparo sobre 30° y especialmente 45° a 90°

High-Speed Ballistic Test Thumbnail

Evidencia balística de alta velocidad demostrando fragmentación y destrucción de balas en ángulos de impacto pronunciados

Informes Balísticos Detallados (Análisis Experto de Cristián Flores en 2024) — Solicitud de Protocolo de Evidencia Denegada por Seguridad Nacional (2024) — Informe Pericial Criminalístico de Osvaldo Faunes (2020) — Informe Crimodinámico de Claudio Alberto Muñoz (2020) — Pre-Informe Pericial Criminalístico-Balístico de Mauricio Guzmán (2020) — Informe Pericial Social de Katherine Valeria Henríquez (2020) — Análisis Químico María Verónica Villarroel (2020)

Análisis Pericial del Caso del Radiador y Caja de Cambios de Molina

Análisis pericial completo del caso del radiador y caja de cambios del Hyundai de Daniel Molina por Cristián Flores

Experto: Cristián Flores — 2024

Ver PDF

Análisis Pericial del Caso de la Herida en la Pierna de Ahumada

Informe pericial preliminar sobre la herida en el muslo de Ahumada por Cristián Flores

Experto: Cristián Flores — 2024

Ver PDF

Inscripciones de Armas y Licencia de Transporte de John Cobin (Vigente en 2019)

Documentos oficiales de registro de armas y licencia de transporte vigentes al momento del incidente en 2019

Ver PDF

Informe Pericial Criminalístico

11 de mayo de 2020 - Análisis criminalístico integral de la evidencia del caso

Experto: Osvaldo Faunes Peña — 2020

Ver PDF

Informe Crimodinámico de Claudio Alberto Muñoz Pérez con Fotos de la Ubicación de Luis Ahumada

11 de mayo de 2020 - Análisis crimodinámico con evidencia fotográfica de la ubicación de Luis Ahumada

Experto: Claudio Alberto Muñoz Pérez – 2020

Ver PDF

Pre-Informe Peritaje Criminalística-Balística de Mauricio Guzmán Caro (No Utilizado - Perito No Inscrito en Valparaíso)

24 de enero de 2020 - Pre-informe no utilizado porque perito no estuvo inscrito como perito en Valparaíso

Experto: Mauricio Guzmán Caro – 2020

Ver PDF

Informe Pericial de Químico Forense PDI por María Verónica Villarroel Rojas - Febrero 2020

11 de mayo de 2020 - Análisis criminalístico integral de la evidencia del caso

Ver PDF

Informe Pericial Social por Katerine Valeria Henríquez Campos

26 de enero de 2020 - Análisis pericial social de las circunstancias y contexto del caso

Experta: Katerine Valeria Henríquez Campos – 2020

Ver PDF

Informe Pericial Antropológico por Gabriel Sergio Salinas San Martin

2020 - Análisis antropológico de patrones de lesiones y características de heridas

Experto: Gabriel Sergio Salinas San Martin — 2020

Ver PDF

Denegación de Solicitud de Información de Protocolos de Evidencia por Razones de Seguridad Nacional

30 de abril de 2024 - Resolución denegando petición de información sobre protocolos criminalísticos de evidencia de Carabineros

Coronel de Carabineros Loreto Osses Coloma — 2024

Ver PDF

Evidencia Visual — Imágenes y Documentación

Evidencia Médica — Documentación Hospitalaria y Forense

Hospital Report

Admisión Hospital Fricke

Admisión hospitalaria oficial y reporte médico

Ver Tamaño Completo
Labocar Location

Análisis de Ubicación Labocar

Documentación de ubicación del laboratorio forense

Ver Tamaño Completo
Medical Evidence

Documentación Médica

Evidencia médica forense ángulo 2

Ver Tamaño Completo

Informe de Investigación Carabineros por Capitán Jorge Guzmán Rojas - 17 de enero de 2020

Ver PDF

Investigación PDI — Evidencia Policial

PDI Close-up

Investigación PDI Primer Plano

Evidencia detallada de investigación policial

Ver Tamaño Completo
PDI Location

Evidencia de Ubicación PDI

Documentación policial de ubicaciones

Ver Tamaño Completo

Evidencia Balística — Análisis de Trayectoria e Impacto

Entry Point

Punto de Entrada en Caja de Cambios

Evidencia del punto de entrada del vehículo de Molina

Ver Tamaño Completo
15 Degree Angle

Radiador Ángulo 15°

Impacto del radiador en ángulo de 15 grados

Ver Tamaño Completo
15 Degree Closer

Radiador 15° Primer Plano

Vista detallada del impacto de 15 grados

Ver Tamaño Completo
Ricochet Evidence

Evidencia de Rebote

Primer plano del punto de rebote de la bala

Ver Tamaño Completo
Trajectory Analysis

Análisis de Trayectoria de Bala

Trayectoria completa de la bala y rebote

Ver Tamaño Completo
Entry Close-up

Entrada del Radiador Primer Plano

Punto de entrada detallado del radiador

Ver Tamaño Completo
Exit Point

Punto de Salida del Radiador

Documentación del punto de salida del radiador

Ver Tamaño Completo

Imágenes Clave de los Videos Relacionados con el Caso

Caso de Lesión en el Muslo de Ahumada
Los labios mentirosos son abominación a Jehová Proverbios 12:22a

Testigos entrenados, coludidos y mentirosos, contradiciendo video y evidencia policial

Declaración de Luis Ahumada ante Fiscal - 17 de diciembre de 2019

Ver PDF

Declaración de Luis Ahumada ante PDI - 10 de noviembre de 2019

Ver PDF

Declaración de Jaime Soto ante PDI - 12 de diciembre de 2019 a las 16:00

Ver PDF

Declaración de Carabinero Jorge Armando Uribe Zapata - 6 de diciembre de 2019

Ver PDF

Declaración de Sebastián Valdés ante PDI - 10 de diciembre de 2019

Ver PDF

Dibujos de Policía (Labocar/Carabineros) de Ubicación de Ahumada Relativo a Cobin el 10 de Noviembre de 2019

Ver PDF

Key Images/Imágenes Claves

Escena - solo tratando herida de entrada (1:54)

Escena - solo tratando herida de entrada (1:54)

No se muestra herida de salida Ahumada (1:57)

No se muestra herida de salida Ahumada (1:57)

Escena - solo tratando herida de entrada (0:32)

Escena - solo tratando herida de entrada (0:32)

Foto escena 2 - tratamiento herida de entrada (0:33)

Foto escena 2 - tratamiento herida de entrada (0:33)

Luis Ahumada Villegas herido 10 de noviembre de 2019

Luis Ahumada Villegas herido 10 de noviembre de 2019

Luis Ahumada Villegas hablando sobre 10 de noviembre de 2019

Luis Ahumada Villegas hablando sobre 10 de noviembre de 2019

Luis Ahumada Villegas con muleta debido al 10 de noviembre de 2019

Luis Ahumada Villegas con muleta debido al 10 de noviembre de 2019

Ahumada no está al lado del pickup (2:16) - Cobin disparando desde dentro cabina

Ahumada no está al lado del pickup (2:16) - Cobin disparando desde dentro cabina

John Cobin dispara su primer tiro desde dentro de la cabina de la camioneta con puerta abierta pero Ahumada no se ve por ninguna parte cerca el 10 de noviembre 2019

John Cobin dispara su primer tiro desde dentro de la cabina de la camioneta con puerta abierta pero Ahumada no se ve por ninguna parte cerca el 10 de noviembre 2019

Caso del Radiador y Caja de Cambios de Molina

Dibujos de Policía (Labocar/Carabineros) sobre Caso de Molina - 2 y 9 de Enero de 2020

Ver PDF

Declaración de Daniel Arnoldo Molina Meza ante PDI - 15 de enero de 2020

Ver PDF

Declaración de Nieves Jessica Pinto Campos ante PDI - 15 de enero de 2020

Ver PDF

Declaración de Carabinero Jorge Armando Uribe Zapata - 6 de diciembre de 2019

Ver PDF
Hyundai rojo 1998 de Molina no está en la pista ni en la solera (0:12)

Hyundai rojo 1998 de Molina no está en la pista ni en la solera (0:12)

Hyundai rojo 1998 de Molina no está en la pista (0:28)

Hyundai rojo 1998 de Molina no está en la pista (0:28)

Hyundai rojo 1998 de Daniel Molina detrás de Cobin en semáforo (0:51)

Hyundai rojo 1998 de Daniel Molina detrás de Cobin en semáforo (0:51)

Último vehículo en la solera es blanco, no Hyundai rojo de Molina (0:13)

Último vehículo en la solera es blanco, no Hyundai rojo de Molina (0:13)

Hyundai 1998 de Molina con capó de otro color en semáforo

Hyundai 1998 de Molina con capó de otro color en semáforo

Fila de autos: plateado, rojo (nuevo no de 1998), blanco y beige (2:54)

Fila de autos: plateado, rojo (nuevo no de 1998), blanco y beige (2:54)

Fila de autos: plateado, rojo (nuevo no de 1998), blanco y beige (2:35)

Fila de autos: plateado, rojo (nuevo no de 1998), blanco y beige (2:35)

Fila de autos con posible vehículo de Molina en pista de tráfico (2:55)

Fila de autos con posible vehículo de Molina en pista de tráfico (2:55)

Cobin esquivando y disparando - Hyundai de Molina no visible, autobús al fondo (2:41)

Cobin esquivando y disparando - Hyundai de Molina no visible, autobús al fondo (2:41)

Cobin esquivando y disparando - Hyundai de Molina no visible (2:39)

Cobin esquivando y disparando - Hyundai de Molina no visible (2:39)

Gentuza (Flaites) a Reñaca e Imágenes Misceláneas de Periodistas Molestas y Asaltantes Versus Defensores
Vista de la calle Pinto en Reñaca mirando hacia atrás hacia la multitud el 10 de noviembre de 2019

Vista de la calle Pinto en Reñaca mirando hacia atrás hacia la multitud el 10 de noviembre de 2019

John Cobin Arrestado y Formalizado - 11 de Noviembre de 2019

John Cobin Arrestado y Formalizado - 11 de Noviembre de 2019

John Cobin - Héroe Chileno 2020

John Cobin - Héroe Chileno 2020

John Cobin Antes del Juicio - Octubre 2020

John Cobin Antes del Juicio - Octubre 2020

John Cobin Levantando su .45 cal H&K en 2019

John Cobin Levantando su .45 cal H&K en 2019

John Cobin Re-Formalizado a Principios de 2020

John Cobin Re-Formalizado a Principios de 2020

John Cobin Sentado en la Sala con Abogado Pre-Juicio 2020

John Cobin Sentado en la Sala con Abogado Pre-Juicio 2020

John Cobin con Ojo Vendado Asiste a una Audiencia Judicial desde la Prisión por Zoomcast durante 2020

John Cobin con Ojo Vendado Asiste a una Audiencia Judicial desde la Prisión por Zoomcast durante 2020

John Macarewich Cobin en una Sala Separada Adyacente con un Gendarme Vigilándolo Durante el Juicio en el Tribunal Inferior de Viña del Mar en Octubre 2020

John Macarewich Cobin en una Sala Separada Adyacente con un Gendarme Vigilándolo Durante el Juicio en el Tribunal Inferior de Viña del Mar en Octubre 2020

Caricatura 'John No Hizo Nada Mal' (Eslogan Pegajoso sobre él entre Libertarios): John Cobin Versus Alcaldesa de Maipú Kathy Barriga quien desfalco millones y sin embargo apenas fue castigada

Caricatura 'John No Hizo Nada Mal' (Eslogan Pegajoso sobre él entre Libertarios): John Cobin Versus Alcaldesa de Maipú Kathy Barriga quien desfalco millones y sin embargo apenas fue castigada

Incendios en Reñaca y Bañistas se Vuelven Violentos después de que John Cobin Parte el 10 de Noviembre de 2019

Incendios en Reñaca y Bañistas se Vuelven Violentos después de que John Cobin Parte el 10 de Noviembre de 2019

Pamela Sepúlveda Mendoza (esposa de John Cobin) después del juicio octubre 2020

Pamela Sepúlveda Mendoza (esposa de John Cobin) después del juicio octubre 2020

Pamela Sepúlveda Mendoza se niega a hablar con reporteros viciosos después del juicio octubre 2020

Pamela Sepúlveda Mendoza se niega a hablar con reporteros viciosos después del juicio octubre 2020

Comentarista Tonto Llama las Acciones de John Cobin un Primer Paso a Guerra Civil

Comentarista Tonto Llama las Acciones de John Cobin un Primer Paso a Guerra Civil

John Cobin se Une con 350 Activistas de Chalecos Amarillos para Amar a sus Vecinos como a sí Mismo y Hacer su Parte para Proteger su Ciudad el Jueves, 7 de Nov de 2019

John Cobin se Une con 350 Activistas de Chalecos Amarillos para Amar a sus Vecinos como a sí Mismo y Hacer su Parte para Proteger su Ciudad el Jueves, 7 de Nov de 2019

Otro asaltante lanzando piedras del otro lado de la camioneta de Cobin (2:39)

Otro asaltante lanzando piedras del otro lado de la camioneta de Cobin (2:39)

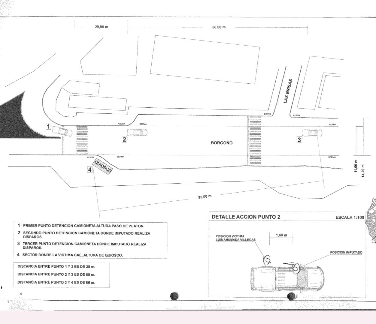
John Cobin Apuntando y Disparando Disuasivamente Hacia un Atacante Agachado Detrás de un Auto en la Esquina de Las Brisas y Aníbal Pinto, no Hacia la Multitud por Calle Pinto (3:06)

John Cobin Apuntando y Disparando Disuasivamente Hacia un Atacante Agachado Detrás de un Auto en la Esquina de Las Brisas y Aníbal Pinto, no Hacia la Multitud por Calle Pinto (3:06)

Gobernador regional Jorge Martinez declara a John Cobin peligro para la sociedad por disparar a personas (1:47) en foto 2020, donde el timestamp (1:47) se refiere al video número 44 (Fiscal acusa a John Cobin) en la sección de videos

Gobernador regional Jorge Martinez declara a John Cobin peligro para la sociedad por disparar a personas (1:47) en foto 2020, donde el timestamp (1:47) se refiere al video número 44 (Fiscal acusa a John Cobin) en la sección de videos

Judges in John Cobin's Trials

Alonso Arancibia Rodriguez, Juez Presidente del Tribunal Oral Penal de Viña del Mar con Escudo Facial - Octubre 2020

Alonso Arancibia Rodriguez, Juez Presidente del Tribunal Oral Penal de Viña del Mar con Escudo Facial - Octubre 2020

Sorprendido grabando mujeres sin su consentimiento en un gimnasio de Concón, la Corte de Apelaciones de Valparaíso finalizó su sumario el 3 de agosto de 2024, apartándolo de sus funciones por 3 meses y con goce de medio sueldo por transgredir de manera gravísima sus deberes.

📺 Ver Video Relacionado (YouTube)
Alonso Arancibia Rodriguez N°2 juez presidente tribunal oral penal de Viña del Mar en octubre 2020

Alonso Arancibia Rodriguez N°2 juez presidente tribunal oral penal de Viña del Mar en octubre 2020

Viviana Poblete Vera juez tribunal oral penal de Viña del Mar en octubre 2020

Viviana Poblete Vera juez tribunal oral penal de Viña del Mar en octubre 2020

Claudio Correa Zacarías juez dictando sentencia tribunal oral penal Viña del Mar en octubre 2020

Claudio Correa Zacarías juez dictando sentencia tribunal oral penal Viña del Mar en octubre 2020

Jueces de la Corte de Apelaciones de Valparaíso

Judge Patricio Hernán Martínez Sandoval - Valparaíso Appellate Court Justice who denied parole in 2023

Patricio Hernán Martínez Sandoval - Juez de la Corte de Apelaciones de Valparaíso (2023): Denegó libertad condicional a John Cobin el 24 de abril de 2023, argumentando que sus creencias, valores y actitudes estadounidenses no modificadas, junto a su poderosa locuacidad, lo hacían un peligro para la sociedad.

Judge Silvana Juana Aurora Donoso Ocampo - Valparaíso Appellate Court Justice who denied parole in 2023

Silvana Juana Aurora Donoso Ocampo - Juez de la Corte de Apelaciones de Valparaíso (2023): Denegó libertad condicional a John Cobin el 24 de abril de 2023, argumentando que sus creencias, valores y actitudes estadounidenses no modificadas, junto a su poderosa locuacidad, lo hacían un peligro para la sociedad. Importante: Anteriormente liberó a Hugo Humberto Bustamante Pérez (caso Ambar), permitiéndole matar a la adolescente Ambar en Quilpué, a pesar de que estaba preso por el asesinato de su pareja y su hijo de 10 años.

Judge Juan Carlos Maggiolo Caro - Valparaíso Appellate Court Justice who denied parole in 2023

Juan Carlos Maggiolo Caro - Juez de la Corte de Apelaciones de Valparaíso (2023): Denegó libertad condicional a John Cobin el 24 de abril de 2023, argumentando que sus creencias, valores y actitudes estadounidenses no modificadas, junto a su poderosa locuacidad, lo hacían un peligro para la sociedad. Condenado por el Tribunal Oral en lo Penal de Viña del Mar por huir de un fatal accidente de tránsito en Concón (región de Valparaíso) sin prestar ayuda a la víctima (agosto de 2023, cuatro meses después de negar la libertad condicional). La triple colisión causó la muerte de una mujer y lesiones graves a tres personas más. Tras huir, Maggiolo denunció falsamente el robo de su vehículo; registros de televigilancia lo ubicaron en el lugar del incidente. Formalizado en marzo de 2024 bajo la 'Ley Emilia' (no dar aviso de emergencia, abandonar el lugar). Declarado culpable por unanimidad del delito de 'abandonar el lugar del accidente sin prestar ayuda' (artículo 195, tercer párrafo). Sentenciado en mayo de 2025 a tres años de prisión: un año de prisión efectiva ('cárcel efectiva') y dos años de 'libertad vigilada intensiva' (supervisión intensiva). Debe pagar una multa de 11 UTM (aproximadamente $755.000 CLP), pagadera en once cuotas mensuales. Ya no ejerce como juez.

Jueces Corruptos Verificados que Condenaron a John Cobin

Considere la baja calidad de los jueces que condenaron a John Cobin y lo mantuvieron en prisión

María Teresa Letelier — Ministra Corte Suprema

María Teresa Letelier

María Teresa Letelier - Ministra de la Corte Suprema de Chile (2021-2025): Mantuvo decisiones que mantuvieron a John Cobin encarcelado. Actualmente bajo investigación criminal por nombramientos judiciales irregulares. En abril de 2021, se reunió con el abogado Luis Hermosilla antes de su nominación, aceptando su oferta de ayuda para asegurar su puesto en la Corte Suprema. Votó en casos que involucraban a personas que la ayudaron a obtener su nombramiento. El 14 de enero de 2026, la PDI allanó su domicilio e incautó dispositivos electrónicos como parte de la investigación dirigida por la Fiscal Regional Claudia Perivancich. Declaró como imputada el 24 de abril de 2025. Se jubiló el 24 de diciembre de 2025. Tercera jueza corrupta verificada involucrada en el caso de John Cobin. Fuente: CIPER Chile, 'Investigación por nombramientos judiciales: PDI realiza incautación en el domicilio de la exjueza suprema María Teresa Letelier' (14 de enero de 2026).

📰 CIPER Chile (14/01/2026)

Alonso Arancibia Rodríguez — Juez Presidente, Tribunal Oral Penal

Alonso Arancibia Rodríguez

Alonso Arancibia Rodríguez - Juez Presidente del Tribunal Oral Penal de Viña del Mar (Octubre 2020): Presidió el juicio de John Cobin que resultó en su condena de 11 años. Sorprendido grabando mujeres sin consentimiento en gimnasio de Concón (Sportlife, diciembre 2023-enero 2024). La policía incautó su teléfono con 46 imágenes/videos de partes íntimas de mujeres, incluyendo una menor. Formalizado en abril 2024 bajo leyes de imágenes sexuales. Suspendido 3 meses con medio sueldo por la Corte de Apelaciones de Valparaíso (3 de agosto de 2024) por 'transgredir gravísimamente sus deberes.' Ofreció renunciar al poder judicial en mayo 2025 citando 'discapacidad ocular.' No negó los delitos y se disculpó con las víctimas. Fuente: Cooperativa, BioBioChile, EMOL (2024).

📰 Cooperativa 📰 BioBioChile

Juan Carlos Maggiolo Caro — Juez Corte de Apelaciones

Juan Carlos Maggiolo Caro

Juan Carlos Maggiolo Caro - Juez de la Corte de Apelaciones de Valparaíso (2023): Denegó libertad condicional a John Cobin el 24 de abril de 2023, citando sus 'creencias, valores y actitudes estadounidenses no modificadas' como peligrosas para la sociedad. Cuatro meses después (agosto 2023), condenado por huir de un accidente de tránsito fatal en Concón sin auxiliar a las víctimas. El choque mató a una mujer y lesionó gravemente a otras tres. Denunció falsamente el robo de su vehículo; cámaras de vigilancia probaron que estuvo en la escena. Formalizado en marzo 2024 bajo 'Ley Emilia.' Condenado por unanimidad en abril 2025 por 'abandonar el lugar sin prestar ayuda.' Sentenciado en mayo 2025 a 3 años de prisión (1 año efectivo, 2 años libertad vigilada), multa de 11 UTM (~USD $775), inhabilitación perpetua para conducir. Ya no ejerce como juez. Fuente: BioBioChile, SoyChile (2025).

📰 BioBioChile 📰 SoyChile

Ángela Vivanco Martínez — Ministra Corte Suprema

Ángela Vivanco Martínez Ángela Vivanco Martínez en prisión preventiva

Ángela Vivanco Martínez - Ministra de la Corte Suprema: Falló en contra de John Cobin en diligencias intermedias, incluyendo apelaciones de libertad condicional y causas contra gendarmes. Destituida de la Corte Suprema en octubre de 2024 tras el escándalo del Caso Audios que expuso sus conversaciones de WhatsApp con el abogado Luis Hermosilla, revelando que coordinaba nombramientos judiciales, influía en fallos y recibía favores a cambio de decisiones. Arrestada el 7 de enero de 2026 en la Operación Muñeca Bielorrusa por cargos de cohecho, lavado de activos y delitos tributarios. Actualmente en prisión preventiva. Su remoción fue la primera destitución de un ministro en ejercicio de la Corte Suprema en la historia moderna de Chile. Fuentes: CIPER Chile, La Tercera, BioBioChile (2024-2026).

📰 CIPER Chile 📰 La Tercera

Jueces de la Corte Suprema que Concedieron la Apelación de John, Reduciendo su Sentencia

Leopoldo Llanos Sagritá, Juez de la Corte Suprema de Chile - Febrero 2021 (Aún Activo en 2025)

Leopoldo Llanos Sagritá, Juez de la Corte Suprema de Chile - Febrero 2021 (Aún Activo en 2025)

María Cristina Gajardo Harboe, Abogada Integrante en Febrero 2021, Posteriormente Jueza de la Corte Suprema de Chile en 2022

María Cristina Gajardo Harboe, Abogada Integrante en Febrero 2021, Posteriormente Jueza de la Corte Suprema de Chile en 2022

Juan Manuel Pardo Muñoz, Juez de la Corte Suprema de Chile - Febrero 2021 (Ahora Jubilado)

Juan Manuel Pardo Muñoz, Juez de la Corte Suprema de Chile - Febrero 2021 (Ahora Jubilado)

Haroldo Osvaldo Brito Cruz, Juez de la Corte Suprema de Chile - Febrero 2021 (Jubilado en 2023)

Haroldo Osvaldo Brito Cruz, Juez de la Corte Suprema de Chile - Febrero 2021 (Jubilado en 2023)

Diego Antonio Minita Luco, Abogado Integrante en Febrero de 2021, Juez Sustituto de la Corte Suprema de Chile

Diego Antonio Minita Luco, Abogado Integrante en Febrero de 2021, Juez Sustituto de la Corte Suprema de Chile

Artículos de Prensa Izquierdista Opuestos a John Cobin

John Cobin: El Camino de un Fanático - Artículo de La Tercera 19 de Noviembre de 2019

Ver PDF

Justicia: Corte Suprema Rebaja Condena de 11 a 6 Años a John Cobin - La Izquierda Diario 18 de Febrero de 2021

Ver PDF

Protestas: Largo Artículo Civicus Izquierdista Menciona a John Cobin en Página 52 como Ultraderechista Unido con la Represión Uniformada en Chile

Ver PDF

Meganoticias Descarta que Cobin esté en módulo militar N°118 - Izquierda estará decepcionada - 13 de noviembre de 2019

Ver PDF

La Tercera: Cobin condenado a 11 años de cárcel - 25 de octubre de 2020

Ver PDF

EMOL: El autodenominado más neoliberal de Chile detenido - 11 de noviembre de 2019

Ver PDF

Washington Post difunde falsedades sobre el caso Cobin - 11 de noviembre de 2019

Ver PDF

Chapo Trap House Episodio 366: Cobertura izquierdista terminal - 12 de noviembre de 2019

Ver PDF

Reddit Chile: Neoliberal que quiere colonizar Curacaví - Falsedades de The Clinic

Ver PDF

The North Star: Supremacista blanco americano en Chile detenido - Informe difamatorio de Shaun King - 13 de noviembre de 2019

Ver PDF

BioBio Chile: Relato objetivo de ciudadano estadounidense arrestado después de disparar - 11 de noviembre de 2019

Ver PDF

Evidencia en Video — 10 de noviembre de 2019

Ahumada Herido thumbnail
1. Ahumada Herido
John Llegando y Saliendo del Semáforo thumbnail
2. John Llegando y Saliendo del Semáforo
John Fuera de la Camioneta Bajo Ataque thumbnail
3. John Fuera de la Camioneta Bajo Ataque
John Fuera de la Camioneta Disparando thumbnail
4. John Fuera de la Camioneta Disparando
Ahumada Cargado en la Camioneta thumbnail
5. Ahumada Cargado en la Camioneta
Entrevista de Juan Pablo Barrientos en Tienda de Surf thumbnail
6. Entrevista de Juan Pablo Barrientos en Tienda de Surf
Entrevista de Juan Pablo Barrientos Parte 2 thumbnail
7. Entrevista de Juan Pablo Barrientos Parte 2
Entrevista de Juan Pablo Barrientos Parte 3 thumbnail
8. Entrevista de Juan Pablo Barrientos Parte 3
Entrevista del Intendente Jorge Martínez Parte 1 thumbnail
9. Entrevista del Intendente Jorge Martínez Parte 1
Entrevista del Intendente Jorge Martínez Parte 2 thumbnail
10. Entrevista del Intendente Jorge Martínez Parte 2
Entrevista del Intendente Jorge Martínez Parte 3 thumbnail
11. Entrevista del Intendente Jorge Martínez Parte 3
John Cobin Da Su Explicación Justo Antes de Su Arresto thumbnail
12. John Cobin Da Su Explicación Justo Antes de Su Arresto
John Cobin disparando hacia la esquina de la calle Las Brisas mientras era atacado por varios hombres que le lanzaban piedras en Reñaca el 10 de noviembre de 2019 thumbnail
13. John Cobin disparando hacia la esquina de la calle Las Brisas mientras era atacado por varios hombres que le lanzaban piedras en Reñaca el 10 de noviembre de 2019
Reportaje Tele 13 sobre Análisis de Rebotes Revela la Ignorancia Chilena sobre Ángulos de Rebotes y Ciencia Balística thumbnail
14. Reportaje Tele 13 sobre Análisis de Rebotes Revela la Ignorancia Chilena sobre Ángulos de Rebotes y Ciencia Balística
@8:08
Corte Suprema Rebaja Condena a John Cobin thumbnail
15. Corte Suprema Rebaja Condena a John Cobin
@2:56
Izquierdistas Comentando Eventos de Reñaca Parte 2 thumbnail
16. Izquierdistas Comentando Eventos de Reñaca Parte 2
@1:18
Izquierdistas Comentando Eventos de Reñaca Parte 1 thumbnail
17. Izquierdistas Comentando Eventos de Reñaca Parte 1
@1:10
Hombre que Disparó en Reñaca Publicó Video thumbnail
18. Hombre que Disparó en Reñaca Publicó Video
Hombre Disparó a Manifestantes tras Marcha en Reñaca thumbnail
19. Hombre Disparó a Manifestantes tras Marcha en Reñaca
@0:12
Estadounidense que Disparó a Manifestantes Arriesga 17 Años thumbnail
20. Estadounidense que Disparó a Manifestantes Arriesga 17 Años
@2:44
Declaran Culpable a John Cobin tras Disparar a Manifestantes thumbnail
21. Declaran Culpable a John Cobin tras Disparar a Manifestantes
@2:44
Simios Destruyen Reñaca y Atacan a Cobin - Uno Rompe Vidrio Co-Piloto con Gran Piedra thumbnail
22. Simios Destruyen Reñaca y Atacan a Cobin - Uno Rompe Vidrio Co-Piloto con Gran Piedra
Intendente Jorge Martínez Habla sobre Salud de Ahumada - Fuera de Riesgo Vital thumbnail
23. Intendente Jorge Martínez Habla sobre Salud de Ahumada - Fuera de Riesgo Vital
Puerta Camioneta Abierta con Vidrio Intacto - Cobin Dispara desde Dentro de Cabina 100cm sobre Pavimento thumbnail
24. Puerta Camioneta Abierta con Vidrio Intacto - Cobin Dispara desde Dentro de Cabina 100cm sobre Pavimento
@0:09
Turba de Simios Manifestantes en la Playa de Reñaca thumbnail
25. Turba de Simios Manifestantes en la Playa de Reñaca
Destrucción y Desorden en Reñaca thumbnail
26. Destrucción y Desorden en Reñaca
Mujer Grita por Giani Mientras Cuida a Ahumada Herido thumbnail
27. Mujer Grita por Giani Mientras Cuida a Ahumada Herido
Daños Provocados por Simios en Reñaca 10 Nov 2019 thumbnail
28. Daños Provocados por Simios en Reñaca 10 Nov 2019
Juicio Oral Viña del Mar con John Cobin, Arancibia, Poblete, Correa, Díaz, Rojas, Oliva, Améstica Oct 2020 thumbnail
29. Juicio Oral Viña del Mar con John Cobin, Arancibia, Poblete, Correa, Díaz, Rojas, Oliva, Améstica Oct 2020
Juicio Oral Viña del Mar con John Cobin, Arancibia, Poblete, Correa, Díaz, Rojas, Améstica, Pamela Oct 2020 thumbnail
30. Juicio Oral Viña del Mar con John Cobin, Arancibia, Poblete, Correa, Díaz, Rojas, Améstica, Pamela Oct 2020
John Cobin Segunda Formalización Febrero 2020 thumbnail
31. John Cobin Segunda Formalización Febrero 2020
Alegatos Parte 1 Juicio Oral Viña del Mar 13 Octubre 2020 thumbnail
32. Alegatos Parte 1 Juicio Oral Viña del Mar 13 Octubre 2020
Alegatos Parte 2 Juicio Oral Viña del Mar 13 Octubre 2020 thumbnail
33. Alegatos Parte 2 Juicio Oral Viña del Mar 13 Octubre 2020
Alegatos Parte 3 Juicio Oral Viña del Mar 13 Octubre 2020 thumbnail
34. Alegatos Parte 3 Juicio Oral Viña del Mar 13 Octubre 2020
Alegatos Parte 4 Juicio Oral Viña del Mar 13 Octubre 2020 thumbnail
35. Alegatos Parte 4 Juicio Oral Viña del Mar 13 Octubre 2020
@0:13
John Cobin Escucha Hijo de Perra, Mátenlo Después de Pasar a Través de los Simios y Disparando en la Primera Oportunidad Reñaca 10 Noviembre 2019 thumbnail

Entre minuto 0:05 a 0:06 se escucha la orden 'Hijo de perra, mátenlo!' ¿Donde se encuentra a Ahumada con polera azul-violeta y pantelones oscuros en las fotos o en el video a las 0:13 (despues del disparo). Durante momentos críticos 0:08 a 0:13 no se ve a Ahumada.¿Acaso un herido no estuviera al piso, llorando o gritando? No se ve ni tampoco después de partir John Cobin de la escena.

36. John Cobin Escucha Hijo de Perra, Mátenlo Después de Pasar a Través de los Simios y Disparando en la Primera Oportunidad Reñaca 10 Noviembre 2019
Videos del periódico La Tercera del evento y la turba maldiciendo a John Cobin en Reñaca 10 nov 2019 thumbnail
37. Videos del periódico La Tercera del evento y la turba maldiciendo a John Cobin en Reñaca 10 nov 2019
Conmoción pública por reducción de sentencia de John Cobin en Reñaca 10 nov 2019 thumbnail
38. Conmoción pública por reducción de sentencia de John Cobin en Reñaca 10 nov 2019
John Cobin diciendo cómo temió por su vida lleva a izquierdistas a despreciarlo en Reñaca 10 nov 2019 thumbnail
39. John Cobin diciendo cómo temió por su vida lleva a izquierdistas a despreciarlo en Reñaca 10 nov 2019
Formalización de John Cobin parte N°1 con sus primeros tres abogados liderados por Cristóbal Valenzuela con mucha prensa y gente golpeando el vidrio llamando a John Cobin asesino Nov 11 2019 thumbnail
40. Formalización de John Cobin parte N°1 con sus primeros tres abogados liderados por Cristóbal Valenzuela con mucha prensa y gente golpeando el vidrio llamando a John Cobin asesino Nov 11 2019
Formalización de John Cobin parte N°2 con fiscalía relacionada con juez Pinto con mucha prensa y gente golpeando el vidrio llamando a John Cobin asesino Nov 11 2019 thumbnail
41. Formalización de John Cobin parte N°2 con fiscalía relacionada con juez Pinto con mucha prensa y gente golpeando el vidrio llamando a John Cobin asesino Nov 11 2019
Formalización de John Cobin parte N°3 con fiscalía izquierdista relacionada con juez Pinto con mucha prensa escuchando y arengando miembros de multitud sedienta de sangre llamando a John Cobin asesino Nov 11 2019 thumbnail
42. Formalización de John Cobin parte N°3 con fiscalía izquierdista relacionada con juez Pinto con mucha prensa escuchando y arengando miembros de multitud sedienta de sangre llamando a John Cobin asesino Nov 11 2019
Piedras cubren la calle mientras simios lanzan rocas asaltan a John Cobin y uno rompe ventana del pasajero Reñaca 10 nov 2019 thumbnail
43. Piedras cubren la calle mientras simios lanzan rocas asaltan a John Cobin y uno rompe ventana del pasajero Reñaca 10 nov 2019
0:43
Fiscal de distrito acusó a John Cobin de dos cargos inventados de intento de asesinato por defenderse en Reñaca 10 nov 2019 thumbnail
44. Fiscal de distrito acusó a John Cobin de dos cargos inventados de intento de asesinato por defenderse en Reñaca 10 nov 2019

Libros del Autor

Bearing the Cross: Un Prisionero Político Gringo Expone las Injusticias, Indignidades y Vejaciones del Sistema de Justicia Penal y Penitenciario Chileno

John M. Cobin, Ph.D. — 2.012 páginas. Escrito desde la prisión en Chile, este libro monumental documenta la experiencia de primera mano de un prisionero político gringo en el sistema penitenciario chileno. Abarca tres cárceles: Valparaíso, Rancagua y Casablanca.

© 2025, 2026 John M. Cobin. ISBN pendiente.

Suffering Unjustly: Encarcelamiento, Familias Destruidas, y Destrucción de Propiedad o Riqueza que Afecta a Cristianos en Sociedades Democráticas Modernas

John M. Cobin, Ph.D. — Edición Revisada, 216 páginas. Para cristianos que sufren injustamente mientras hacen el bien. Basado en 1 Pedro 2:19-20, examina la persecución, el encarcelamiento injusto, y la soberanía de Dios sobre la adversidad. Escrito desde la prisión en Chile.

© 2021, 2026 John M. Cobin. Edición Revisada.

Evidencia y Análisis Presentados en Audio (por IA)

Podcast (ESPAÑOL) Revela Discrepancias Extraordinarias en el Caso de John Cobin que Demuestra su Inocencia

Análisis forense crítico que expone imposibilidades balísticas y químicas que prueban las falsas acusaciones contra John Cobin.

Descargar

Podcast (ENGLISH) Reveals Extraordinary Discrepancies in the John Cobin Case Demonstrating His Innocence

Critical forensic analysis exposing ballistic and chemical impossibilities that prove the false accusations against John Cobin.

Descargar

Podcast (ITALIANO) Rivela Discrepanze Straordinarie nel Caso di John Cobin che Dimostra la sua Innocenza

Analisi forense critica che espone impossibilità balistiche e chimiche che dimostrano le false accuse contro John Cobin.

Descargar

Podcast (ALEMÁN) Revela Discrepancias Extraordinarias en el Caso de John Cobin que Demuestra su Inocencia

Análisis forense crítico que expone imposibilidades balísticas y químicas que prueban las falsas acusaciones contra John Cobin.

Descargar

Podcast (FRANÇAIS) Révèle des Divergences Extraordinaires dans l'Affaire John Cobin Démontrant son Innocence

Analyse médico-légale critique exposant les impossibilités balistiques et chimiques qui prouvent les fausses accusations contre John Cobin.

Descargar

Podcast (PORTUGUÊS) Revela Discrepâncias Extraordinárias no Caso de John Cobin que Demonstra sua Inocência

Análise forense crítica expondo impossibilidades balísticas e químicas que provam as falsas acusações contra John Cobin.

Descargar

John Cobin Case — A Travesty of Justice (Podcast)

An in-depth podcast examining the John Cobin case as a travesty of justice — forensic impossibilities, constitutional violations, and systemic failures exposed. (English Only)

Descargar

Caso John Cobin — Lleno de Discrepancias (Podcast)

Un podcast en profundidad que revela las discrepancias extraordinarias en el caso de John Cobin — imposibilidades forenses, violaciones constitucionales, y fallas sistémicas expuestas. (Sólo en Español)

Descargar
Click anywhere or press ESC to close